Fusco

Roma, 2025

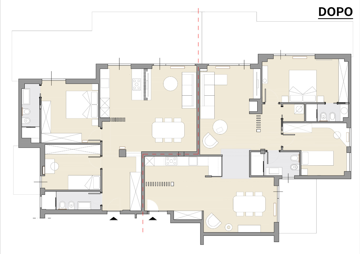
L’immobile frazionato è situato in un contesto signorile, in uno dei condomini più affascinanti di Balduina. La ristrutturazione è stata totale e gli spazi sono stati pensati in maniera dinamica ed efficiente, lasciando spazio alla funzionalità tanto quanto all’estetica.

Tipologia lavoro
Ristrutturazione + Frazionamento
Luogo
Balduina, Roma
Anno
2025
Architetto coinvolto
Alessandro Tata Nardini, Roberto Amatori
Tempi di realizzazione
6 mesi
Superficie
2 trilocali da 120 mq commerciali